Visit Europe and the alleys are alive. They are a place for people with active uses filling up the storefronts. Sure, they still have places for trash pick up and parking ramp entrances, but they don’t think of these spaces as the forgotten voids between our dense urban structures. You will find wine shops and general stores, shops that sell clothing and even school yards.
Alleys can be vibrant, but code mandates wasted spaces
It’s not hard to imagine what we can do with our alley spaces; all you have to do is walk down to Post Alley right here in Seattle. While cars sit impatiently idle next to Pike Place Market — a space we stupidly won’t close off to cars — around the corner lives one of the most vibrant pedestrian-oriented spaces in our city. Rather than storing dumpsters, Post Alley is a car-free street to pick up fruit, grab some chowder, drink a pint, or buy some clothing, and it is always packed with people. These shops have no problem doing daily deliveries and operating without an alley loading space, so why do we dictate them for other buildings?

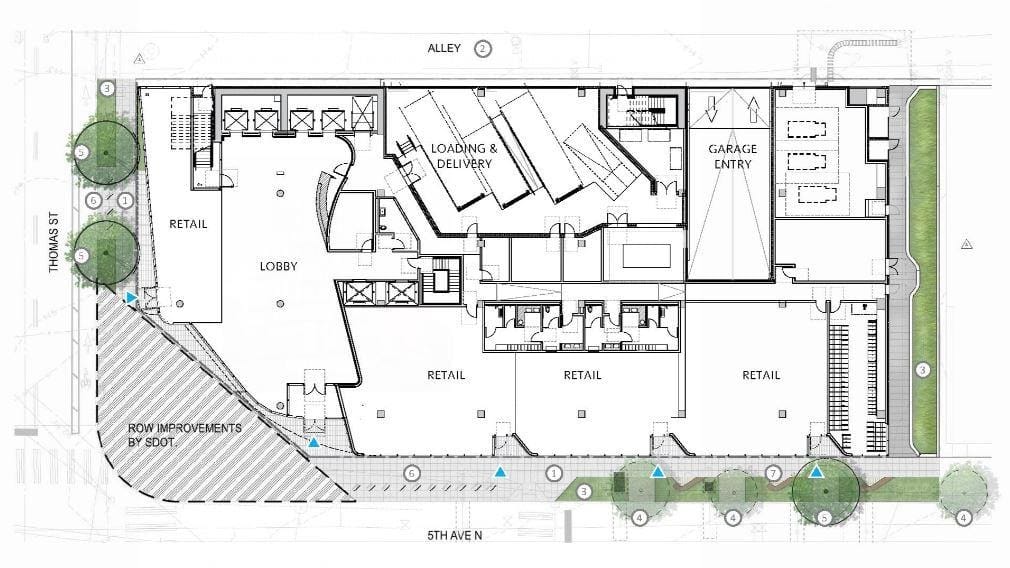
Seattle exempts Downtown projects from providing a single parking space, but they mandate multiple truck parking spaces on precious real estate. Loading docks are those large building voids in the back of a project that take up almost a quarter of the ground level and sit empty most of the time. They are spaces designed to store large trucks and garbage dumpsters, and the city even charges developers for these required spaces which can eat upwards of 5,000 square feet of developable area in any given office project. These loading spaces are not always necessary for developments, and — just like parking — consume valuable ground level spaces that could be used for an active use. Unlike on-site loading, retail use is exempt from floor area limitations in city code, so developers can effectively build as much of it as they desire — and we should let them!

End the loading mandate and open up the alley
Right now, if you build an office building, you are required to store three or four trucks on-site, decaying the ground level from any active uses off of the alley. The truck sizes are dictated by city code (requiring them to be 35 feet long) and you are forced to park them on the property. While Seattle doesn’t have parking minimums for cars Downtown, it does parking minimums for large trucks.
Retailers can easily handle deliveries the way Post Alley does, with a combination of alternative delivery modes and street loading spaces the way things are often done in cities around the world. In fact, if you provide less than 10,000 square feet of retail, you don’t have to provide a spot and the city assumes the project can handle deliveries in by alternative means. But the moment you do the city a favor and provide more active use space, suddenly you’re stuck parking a 35-foot semi on-site for some nonsensical reason.

Seattle touts itself as a progressive, climate-forward thinking city. Unlike Bellevue — which requires two and a half parking spaces per 1,000 square feet of development — Seattle has no minimum and caps the maximum at one parking space per 1,000 square fee in Downtown. This encourages transportation behaviors that have helped relieve congestion and reward our city with more alternative modes that reduce emissions. But enormous loading trucks? Believe it or not, Bellevue has no minimum for that, and Seattle does.
Cars are loud, dangerous, and polluting. It’s no wonder that Seattle’s busy one-way streets have less of a welcoming environment than Post Alley. Why is that? It’s the cars. And since we won’t be changing our street designs any time soon — which should flip our Downtown one-way highway streets to two-way streets — we might as well utilize what space we have to flourish as car-free environments.